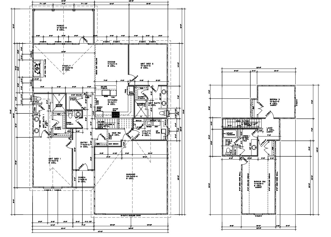
Heron
Sq. Ft.
2592
Bed
3
Bath
3.5
Stories
1
Heron Home Plan

We’ll help you find your home
Fill out the form below, or contact us by calling (228)346-4193 or emailing us at curtis@bwartisan.com
"*" indicates required fields


